Pisos resiste até 6,0 ton. / m²
Portaria / Segurança Blindada 24h
Pé Direito 12,0 m
Iluminação natural
Utiliza lâmpadas LED
Piso nivelado a laser
Sprinklers
Imediato
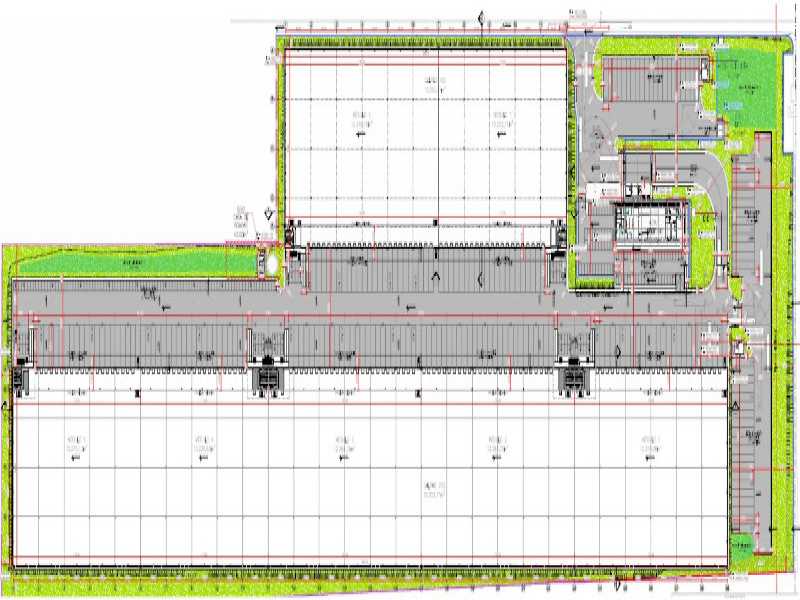
98.529 m²
áreas contíguas até
70.686 m²
áreas a partir de
12.601 m²
com área de
galpão
10.221 m²
com
21 docas
É um Condomínio Logístico que possuirá área locável de 98.529 m². Galpões classe AAA
Edifício de Escritórios
Condomínio Logístico
Condomínio de galpões
© Galpões Galpana - CRECI J26250 - Todos os direitos reservados