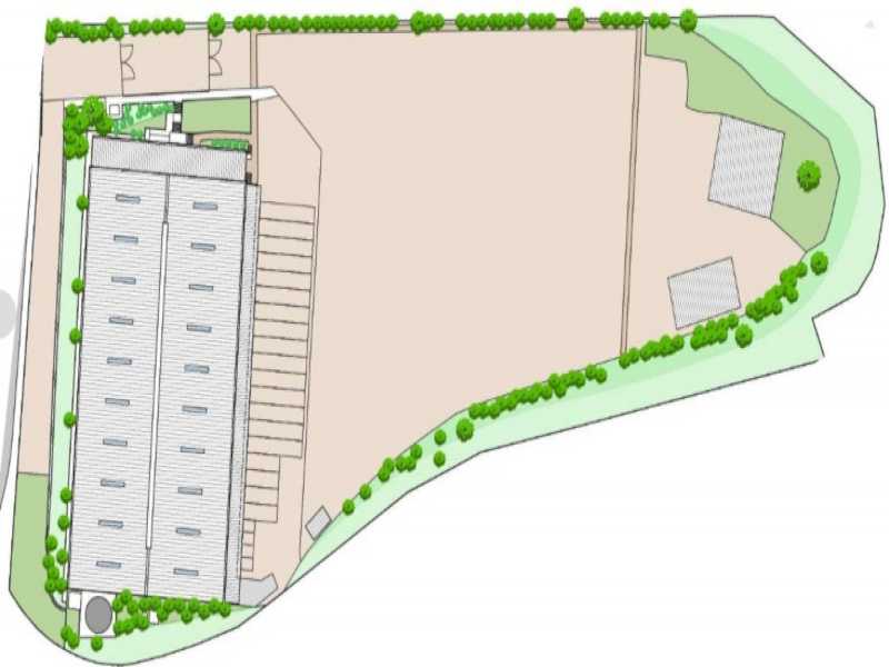
• Amplo pátio de manobras;
• Estacionamento externo e interno para veículos leves e pesados;
• Iluminação natural;
• Lâmpadas LED;
• Sprinklers Instalados (Categoria J4);
• Pé-direito livre: 12m;
• Ventilação de ar natural;
• Piso em concreto nivelado a laser com capacidade de 6 t/m²
• Pátio de 14.084 m²